N/A, Plantation, FL

About N/A

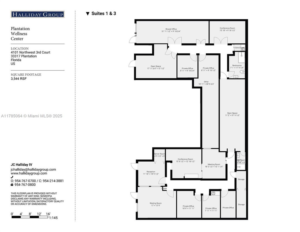
Second generation medical space (formerly a med spa) available near the heart of Plantation. Located right next to the HCA's new emergency center.

Features of N/A

MLS® # A11785064
Price $29
Bathrooms 0.00
Acres 0.00
Year Built 1974
Type Commercial
Sub-Type Office
Status Active

Community Information

Address N/A
Area 3680
City Plantation
County Broward
State FL
Zip Code 33317
HOPA No Hopa

Amenities

Is Waterfront No
Has Pool No

Interior

Fireplace No

Listing Details

OfficeHalliday Grp Rlty Advisors Inc

Request a Showing

Provide a valid email address.
When would you like to view this property?